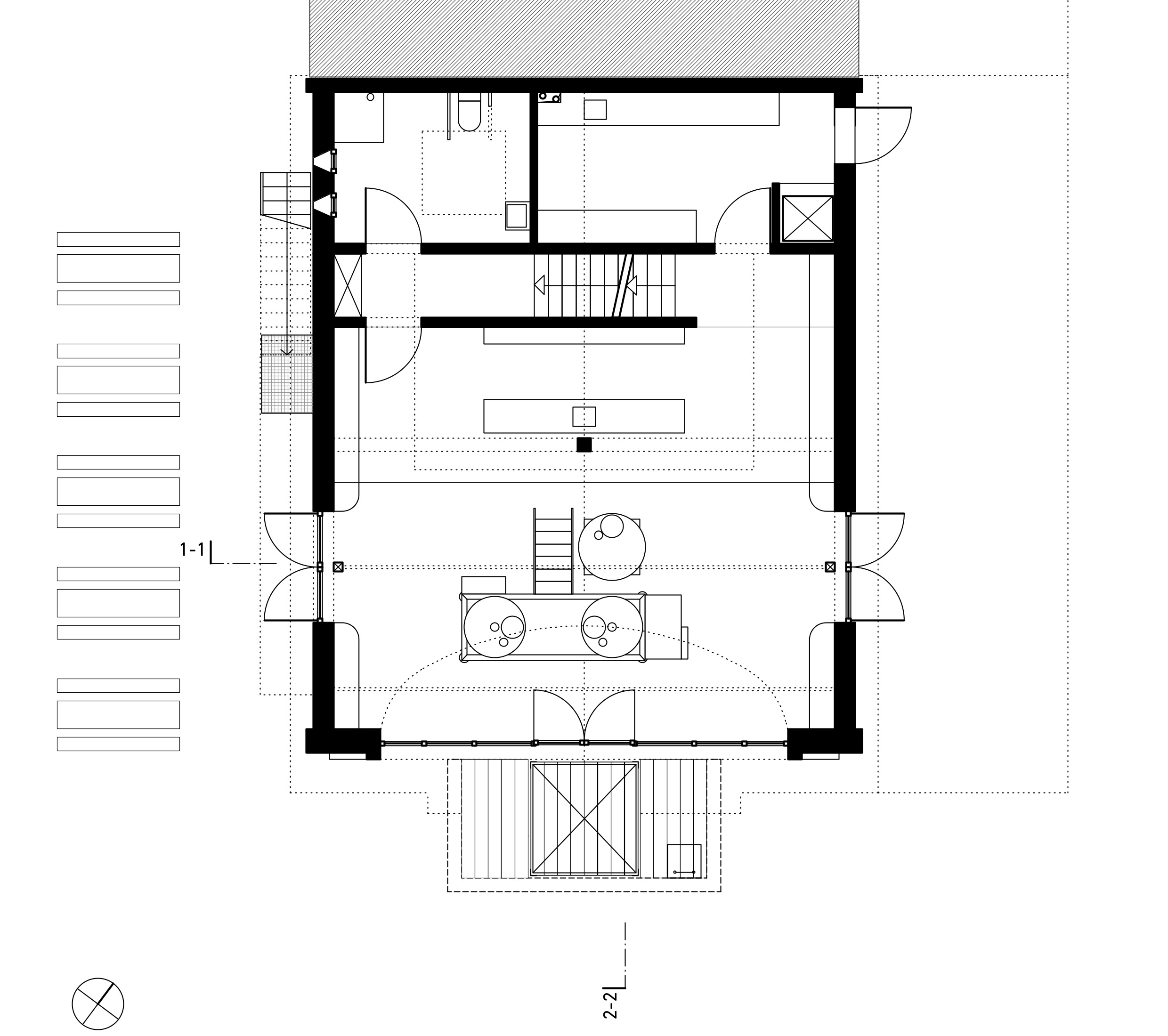
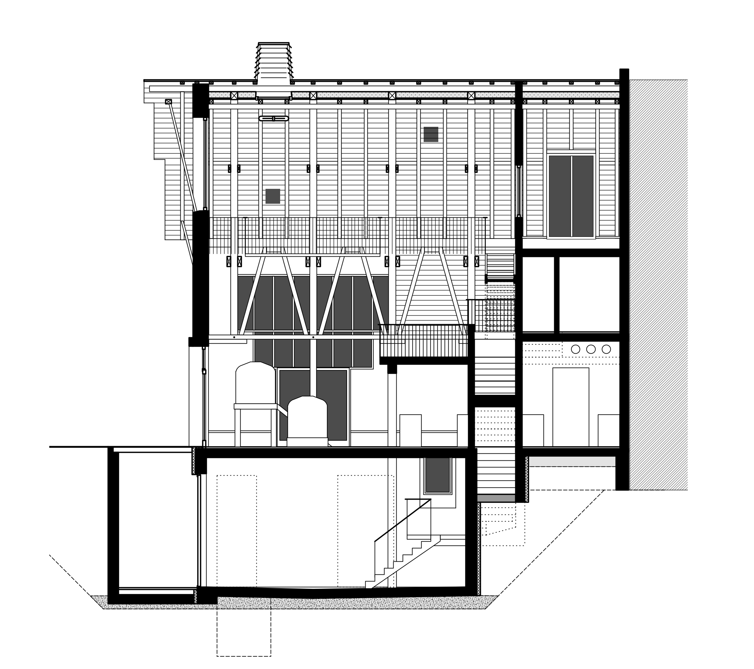
Auf einem ehemaligen Bauernhof gilt es eine kleine Brauerei inkl. einer Freischankfläche zu errichten. Die Herausforderung liegt im Unterbringen der gesamten Brautechnik auf der relativ kleinen Grundfläche in Kombination mit der Nutzung als Gaststätte und Büro.
Modellfotos: Henning Koepke

































