Hausgruppe Penzberg

Bauherr: Privat
Leistungen: Lph 2-4
Baukosten KGR 300+400: auf Anfrage
Baubeginn: Ende 2020 / Anfang 2021
Fertigstellung: voraussichtlich Ende 2021

Drei Familien, viele Wünsche und ein Bebauungsplan.
Wir sind schon sehr gespannt auf das „Dreierlei“…

X
1/7
Hausgruppe Penzberg

Bauherr: Privat
Leistungen: Lph 2-4
Baukosten KGR 300+400: auf Anfrage
Baubeginn: Ende 2020 / Anfang 2021
Fertigstellung: voraussichtlich Ende 2021

Drei Familien, viele Wünsche und ein Bebauungsplan.
Wir sind schon sehr gespannt auf das „Dreierlei“…

Ansicht Süd, Version 4
Querschnitt, Version Split-Level
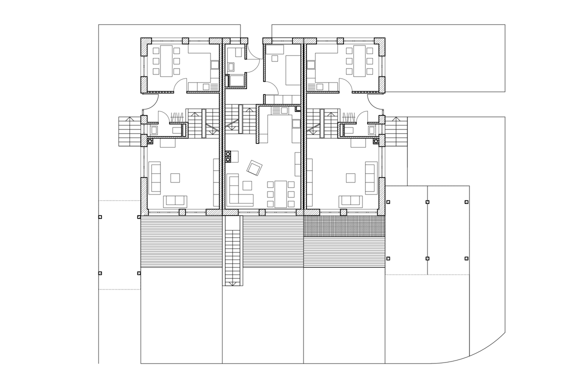
Grundriss, Version Split-Level
Ansicht Süd, Version 2
Grundriss, Version 2
Ansicht Süd, Version 3