Die Projektbearbeitung erfolgte in Zusammenarbeit mit Max Otto Zitzelsberger.
Städtebau
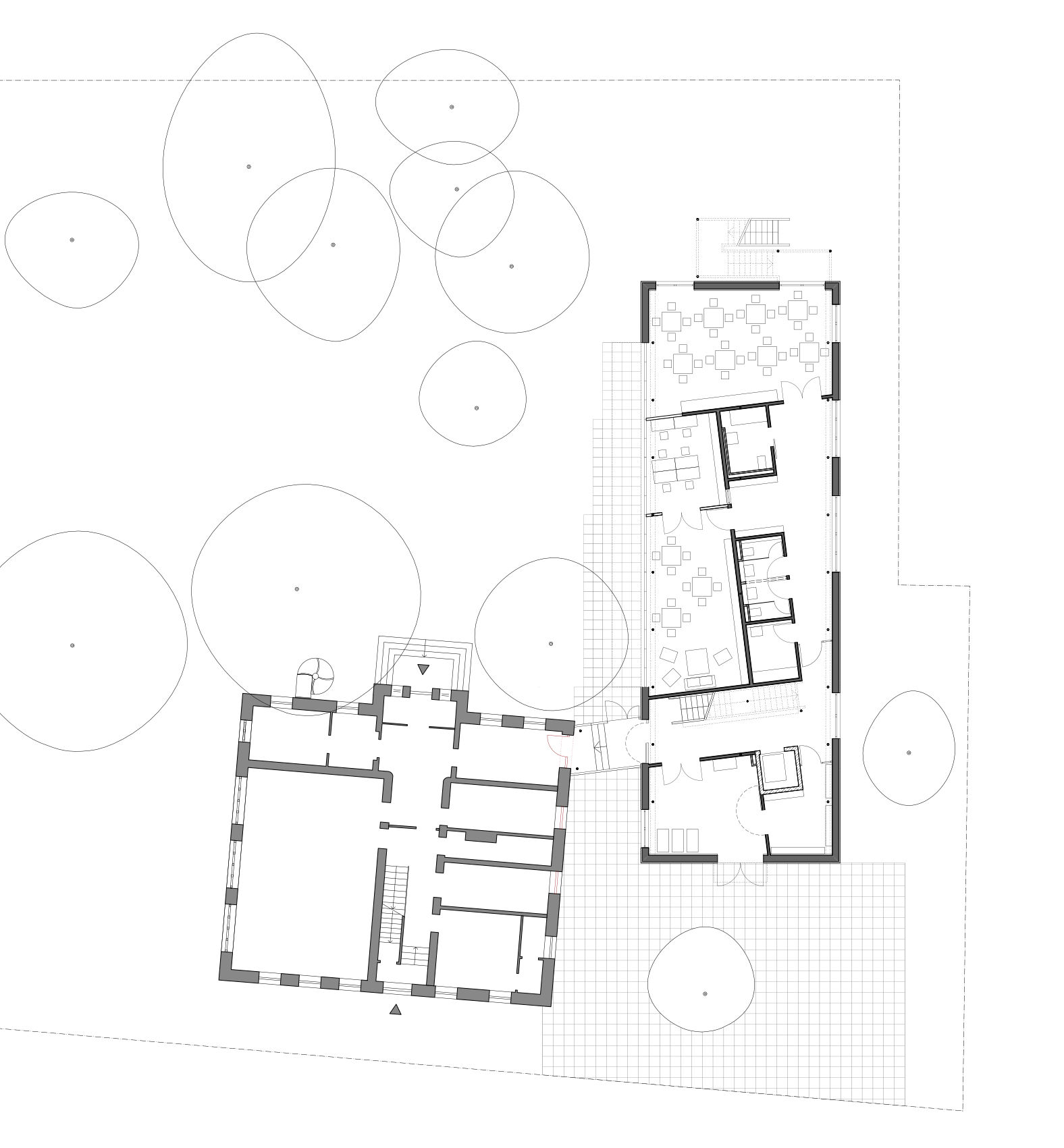
Der Neubau ist östlich des denkmalgeschützen Bestandsgebäudes situiert. Dadurch konnte der bestehende Garten mit Baumbestand sehr gut in die Planung integriert werden.
Die Baukörperanordnung schafft für beide Kindergärten einen grossen zusammenhängenden Garten mit sehr hohen Aussenraumqualitäten.
Durch das Wegrücken des Neubaus von der Bahnhofstrasse entsteht zudem ein Vorplatz vor der Kita, der durch den Neubau und durch das historische Gebäude räumlich gefasst wird.
Denkmal/Gestaltung
Die Geometrie und Gestaltung des Neubaus orientiert sich an der ortsüblichen Bauweise.
Das flach geneigte Satteldach mit vierseitig umlaufenden Dachüberständen ist für Höhenkirchen-Siegertsbrunn typisch. Der Balkon im Bereich der Kinderkrippengruppe im 1.OG ist am Vordach abgehängt. Der Neubau orientiert sich an der Farbigkeit des denkmalgeschützten Bestandsgebäudes. Die weissen Gesimse, Fenster und Fensterfaschen des historischen Gebäudes übernimmt der Neubau sinngemäß beim Stahlbau, dem Balkon, den Fenstern und dem Sonnenschutz. Durch die Anwendung dieses Gestaltungsprinzips beim Neubau stellt sich eine Ensemblewirkung mit dem historischen Gebäude ein.
Konstruktion
Der Neubau ist nicht unterkellert, die Bodenplatte wird in Stahlbeton ausgeführt.
Alle tragenden Bauteile im EG und OG werden als Holzskelett mit Stahlstützen erstellt. Die Holzdecke über dem Erdgeschoss wird als Brettsperrholzdecke und das Dach als Pfettendach mit Blecheindeckung ausgeführt. Die Aussenwände werden als Holztafelwände mit hinterlüfteter, vertikaler Holzschalung ausgeführt. Auf dem flach geneigten Satteldach wird eine PV-Anlage ausgeführt.
Ein Film über die Holzbauarbeiten kann hier angeschaut werden. Diese werden durch die Firma „Georg Schuder Zimmerei- und Sägewerk GmbH“ ausgeführt.
Fotos und Film: Henning Koepke, München













