Wohnhaus im Rottal

Bauherr: Privat
Leistungen: Lph 1-4
Bruttogrundfläche: ca. 400 m2
Baukosten KGR 300+400: auf Anfrage

Für ein junges Paar sollte auf dem elterlichen Dreiseithof in Niederbayern ein großzügiges Einfamilienhaus entworfen und errichtet werden. In klarer Verwandtschaft zum fertiggestellten Bauernhaus im Vilstal (2017) wurde auch hier die Typologie und Konstruktion der niederbayrischen Höfe studiert und in eine Zeitgenössigkeit überführt. Die regional-typische Bautradition, welche beispielsweise den Holzbau mit dem Massivbau kombiniert, verhilft dem Bau zu seinem Ausdruck und verankert ihn in seinem Kontext. Das es hierbei nicht um die reine Übernahme einer Tradition ging, sondern unser Interesse aus der Konstruktion und ihrer Bedeutung für zeitaktuelle Themen wie der Ressourcenschonung und Materialgerechtigkeit geweckt wurde, sollte klar werden. Fragen nach Dauerhaftigkeit, Einfachheit und Effizienz standen hier im Vordergrund. In spannendem Dialog mit den Bauherren entstand dieses Projekt und regt uns auch in Zukunft zur fortlaufenden Beschäftigung mit den reichhaltigen Bauten auf dem Lande an.

X
1/7
Wohnhaus im Rottal

Bauherr: Privat
Leistungen: Lph 1-4
Bruttogrundfläche: ca. 400 m2
Baukosten KGR 300+400: auf Anfrage

Für ein junges Paar sollte auf dem elterlichen Dreiseithof in Niederbayern ein großzügiges Einfamilienhaus entworfen und errichtet werden. In klarer Verwandtschaft zum fertiggestellten Bauernhaus im Vilstal (2017) wurde auch hier die Typologie und Konstruktion der niederbayrischen Höfe studiert und in eine Zeitgenössigkeit überführt. Die regional-typische Bautradition, welche beispielsweise den Holzbau mit dem Massivbau kombiniert, verhilft dem Bau zu seinem Ausdruck und verankert ihn in seinem Kontext. Das es hierbei nicht um die reine Übernahme einer Tradition ging, sondern unser Interesse aus der Konstruktion und ihrer Bedeutung für zeitaktuelle Themen wie der Ressourcenschonung und Materialgerechtigkeit geweckt wurde, sollte klar werden. Fragen nach Dauerhaftigkeit, Einfachheit und Effizienz standen hier im Vordergrund. In spannendem Dialog mit den Bauherren entstand dieses Projekt und regt uns auch in Zukunft zur fortlaufenden Beschäftigung mit den reichhaltigen Bauten auf dem Lande an.

Bestandshof
Bestandshof
Lageplan
Grundriss UG
Grundriss EG
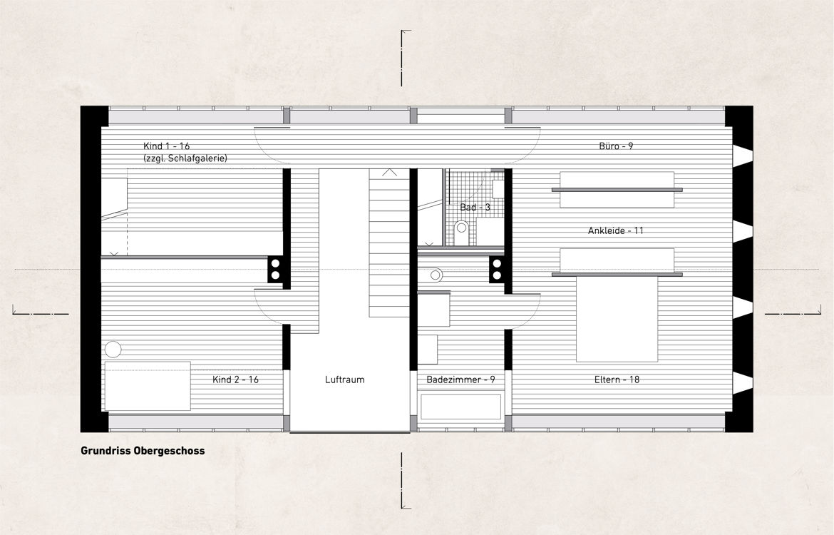
Grundriss OG
Längsschnitt
Querschnitt
Ansicht-West
Ansicht-Süd
Ansicht-Ost
Ansicht-Nord
Kellergeschoss
Erdgeschoss
Konstruktion