Sanierung ehemaliges Gasthaus Lukas

Nichtoffener Realisierungswettbewerb mit vorgeschaltetem Auswahl- / Losverfahren
2018
Auslober: Gemeinde Berngau

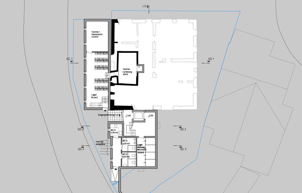
Das Haus Lukas bleibt in seiner Form und Abmessung weiterhin ablesbar und nahezu unverändert. Der Hinterhof jedoch wirkt durch die momentane Bebauung sehr beengt und verschattet. Das Treppenhaus und eine weitere kleinere Wohneinheit, sowie ein Keller für Technik und öffentliche WC ́s werden in die Abbruchgruben der Nebengebäude platziert. So sind wenig Erdarbeiten nötig.

Die Grundstruktur der unteren Geschosse wird baulich wie räumlich so weit wie möglich beibehalten. Die Fletz bleibt als wichtigster Erschliessungsraum durchgesteckt.Lediglich das Satteldach wird wie ursprünglich vorhanden steiler angelegt (44,5 Grad) ohne dabei die Abstandsflächen wesentlich zu verändern. Dabei wird der Dachstuhl und die Giebelwände neu konstruiert. Der Fassade zum Platz kommt dabei eine hohe Bedeutung zu und wird nach den ursprünglichen Prinzipien als reine Lochfassade mit einem geringen Fensteranteil hergestellt. Wohn- und Essräume werden über Eck belichtet. Die Fenster zum Platz könnten als Kastenfenster mit nach aussen öffnenden Aussenfenstern, sog. Winterfenstern, ausgeführt werden.

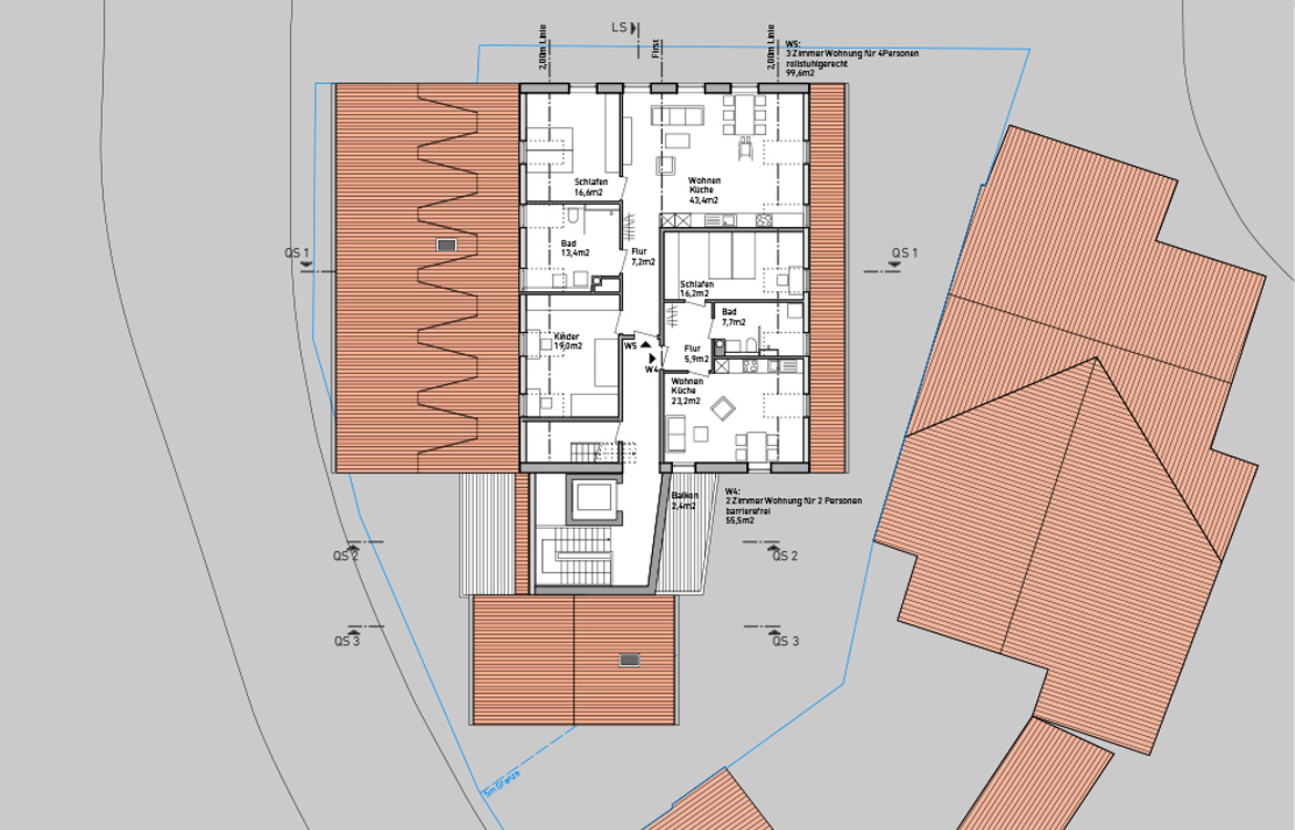
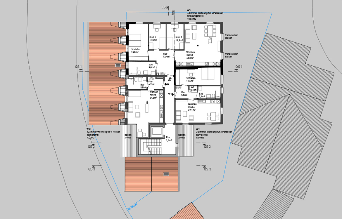
Alle Wohneinheiten werden barrierefrei und über den Aufzug erreicht. Alle Bäder liegen an der Aussenhülle und können somit natürlich belüftet und belichtet werden. 5 der Wohnungen erhalten einen Balkon oder eine Terrasse. Konsequente Eckbelichtung und eine Raumhöhe von ca. 3 m können bei fehlenden Balkonen als Kompensation gewertet werden. Zudem wird den Wohnungen ohne Balkon ein Gartenanteil zur Verfügung gestellt.

Die Bücherei liegt als langgestreckter Raum neben der Straße und ist gut einsichtig. Sie wird über das Haupthaus und der Fletz erschlossen, ist somit barrierefrei erreichbar. Die Mutter-Kind-Gruppe erhält im EG einen großen Raum, mehrere Räume zum Mitnutzen und eine Freifläche.

Natürlich ist der Bürgermeister im EG und am Eck repräsentativ zum Platz hin untergebracht.
Der Fletz kann als „Hausgang“ im klassischen Sinne mit benutzt werden. Möglich wäre ein Kachelofen mit Ofenbank als Zentrum des Fletzs und des öffentlichen Raumes.

Die bestehenden Decken über EG und OG werden mit einen Betonverbundsystem in Ihrer Tragfähigkeit 2- bis 3-fach verbessert. So kann auch der Schwingungsnachweis erbracht und die Decken als aussteifende Scheibe eingesetzt werden. Die Decke über EG kann mit geringen zusätzlichen Massnahmen bis zu F90 ertüchtigt werden, da der Beton zwischen den Balken 2 Flanken der Holzbalken vor Abbrand schützt. Die Konstruktion ist bei Bedarf reversibel. Das bestehende Mauerwerk wird ausgebessert und ergänzt. Die Neubauten werden in konventioneller Ziegelbauweise hergestellt. Auf ein Wärmedämmverbundsystem wird komplett verzichtet.

Durch den weitgehenden Erhalt der Bausubstanz, mit Ausnahme des Dachstuhls, ist der nachhaltigen Nutzung des Bestandsgebäudes Rechnung getragen. Neue Materialien können weitestgehend aus dem Umland bezogen werden. Verbundstoffe werden nicht eingesetzt. Die neuen Keller werden an Stellen platziert, an denen eine Unterfangung des Gasthauses weitestgehend umgangen werden kann. Das beheizte Volumen wird durch die Ausbildung eines kalten Speichers auf das Minimum reduziert. Dort können auch Kellerersatzräume untergebracht werden.

Durch die Auflockerung der Bebauung entstehen gut nutzbare Freiflächen, die jeweils einer Nutzung zugeordnet werden können.Der Gehweg kann an der Engstelle in der Reichertshofer Straße verbreitert werden.

X
1/7
Sanierung ehemaliges Gasthaus Lukas

Nichtoffener Realisierungswettbewerb mit vorgeschaltetem Auswahl- / Losverfahren
2018
Auslober: Gemeinde Berngau

Das Haus Lukas bleibt in seiner Form und Abmessung weiterhin ablesbar und nahezu unverändert. Der Hinterhof jedoch wirkt durch die momentane Bebauung sehr beengt und verschattet. Das Treppenhaus und eine weitere kleinere Wohneinheit, sowie ein Keller für Technik und öffentliche WC ́s werden in die Abbruchgruben der Nebengebäude platziert. So sind wenig Erdarbeiten nötig.

Die Grundstruktur der unteren Geschosse wird baulich wie räumlich so weit wie möglich beibehalten. Die Fletz bleibt als wichtigster Erschliessungsraum durchgesteckt.Lediglich das Satteldach wird wie ursprünglich vorhanden steiler angelegt (44,5 Grad) ohne dabei die Abstandsflächen wesentlich zu verändern. Dabei wird der Dachstuhl und die Giebelwände neu konstruiert. Der Fassade zum Platz kommt dabei eine hohe Bedeutung zu und wird nach den ursprünglichen Prinzipien als reine Lochfassade mit einem geringen Fensteranteil hergestellt. Wohn- und Essräume werden über Eck belichtet. Die Fenster zum Platz könnten als Kastenfenster mit nach aussen öffnenden Aussenfenstern, sog. Winterfenstern, ausgeführt werden.

Alle Wohneinheiten werden barrierefrei und über den Aufzug erreicht. Alle Bäder liegen an der Aussenhülle und können somit natürlich belüftet und belichtet werden. 5 der Wohnungen erhalten einen Balkon oder eine Terrasse. Konsequente Eckbelichtung und eine Raumhöhe von ca. 3 m können bei fehlenden Balkonen als Kompensation gewertet werden. Zudem wird den Wohnungen ohne Balkon ein Gartenanteil zur Verfügung gestellt.

Die Bücherei liegt als langgestreckter Raum neben der Straße und ist gut einsichtig. Sie wird über das Haupthaus und der Fletz erschlossen, ist somit barrierefrei erreichbar. Die Mutter-Kind-Gruppe erhält im EG einen großen Raum, mehrere Räume zum Mitnutzen und eine Freifläche.

Natürlich ist der Bürgermeister im EG und am Eck repräsentativ zum Platz hin untergebracht.
Der Fletz kann als „Hausgang“ im klassischen Sinne mit benutzt werden. Möglich wäre ein Kachelofen mit Ofenbank als Zentrum des Fletzs und des öffentlichen Raumes.

Die bestehenden Decken über EG und OG werden mit einen Betonverbundsystem in Ihrer Tragfähigkeit 2- bis 3-fach verbessert. So kann auch der Schwingungsnachweis erbracht und die Decken als aussteifende Scheibe eingesetzt werden. Die Decke über EG kann mit geringen zusätzlichen Massnahmen bis zu F90 ertüchtigt werden, da der Beton zwischen den Balken 2 Flanken der Holzbalken vor Abbrand schützt. Die Konstruktion ist bei Bedarf reversibel. Das bestehende Mauerwerk wird ausgebessert und ergänzt. Die Neubauten werden in konventioneller Ziegelbauweise hergestellt. Auf ein Wärmedämmverbundsystem wird komplett verzichtet.

Durch den weitgehenden Erhalt der Bausubstanz, mit Ausnahme des Dachstuhls, ist der nachhaltigen Nutzung des Bestandsgebäudes Rechnung getragen. Neue Materialien können weitestgehend aus dem Umland bezogen werden. Verbundstoffe werden nicht eingesetzt. Die neuen Keller werden an Stellen platziert, an denen eine Unterfangung des Gasthauses weitestgehend umgangen werden kann. Das beheizte Volumen wird durch die Ausbildung eines kalten Speichers auf das Minimum reduziert. Dort können auch Kellerersatzräume untergebracht werden.

Durch die Auflockerung der Bebauung entstehen gut nutzbare Freiflächen, die jeweils einer Nutzung zugeordnet werden können.Der Gehweg kann an der Engstelle in der Reichertshofer Straße verbreitert werden.

Ansicht und Fassadenschnitt
Lageplan
Bestand
Piktogramm
Axonometrie
Untergeschoss
Erdgeschoss
Obergeschoss
Dachgeschoss
Speicher
Längsschnitt
Querschnitt 1
Querschnitt 2
Querschnitt 3
Ansicht West
Ansicht Ost
Modell
Modell
Modell
Modell