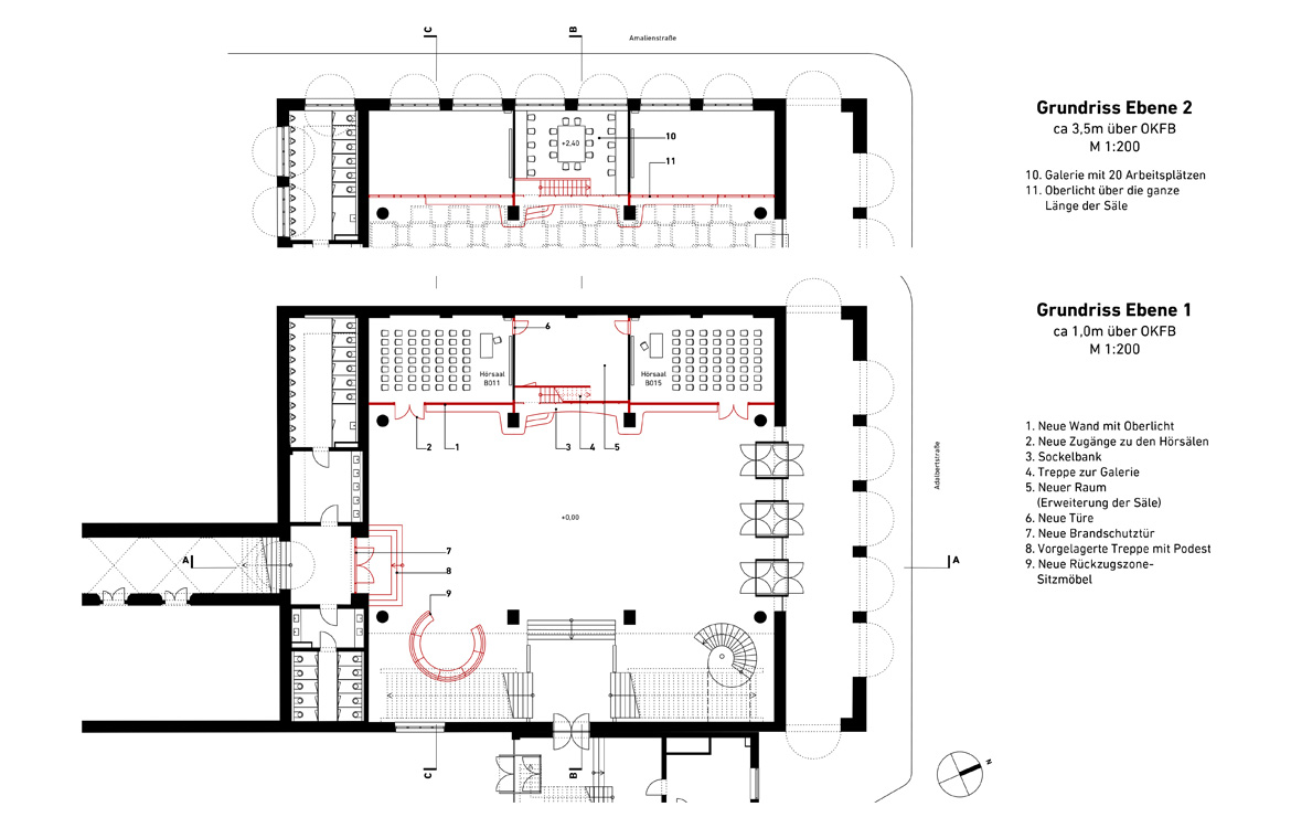
Der Transit- und Eingangsraum der Adalberthalle muss seine großzügige Dimension beibehalten, um die Studenten in den Spitzenzeiten weiterhin aufnehmen zu können. Aus diesem Grund verzichten wir auf eine neue räumliche Gliederung des Raumes.
Unser Konzept sieht eine Sockelbank entlang der Trennwände zu den Hörsälen B011 und B015 vor. Die Hörsäle wurden nachträglich eingebaut, ihre Ausführung entspricht nicht der architektonischen Qualität der anderen Bauteile der Adalberthalle. Die Wände weisen kaum mehr Qualitäten als die der reinen Raumtrennung auf. Zudem wurde der Adalberthalle auch das Tageslicht genommen.
Genau an dieser Stelle sehen wir die Schwachstelle des Raums und auch das Potenzial für die Aufwertung.
Unser Entwurf basiert auf der Gestaltung einer Wand mit Sitzfläche, Oberlicht, integrierter Heizung und zusätzlicher, punktueller Beleuchtung unter Berücksichtigung des Brandschutzes eines notwendigen Flures. Die Eingänge zu den Hörsälen werden vergrössert und neu gestaltet.
Die Galerie zwischen den Hörsälen bietet Platz für 20 Tisch-Arbeitsplätze, die sich direkt an der Fassade befinden und zudem eine räumliche Verbindung zur Adalberthalle aufweisen.






