Städtebauliches Konzept
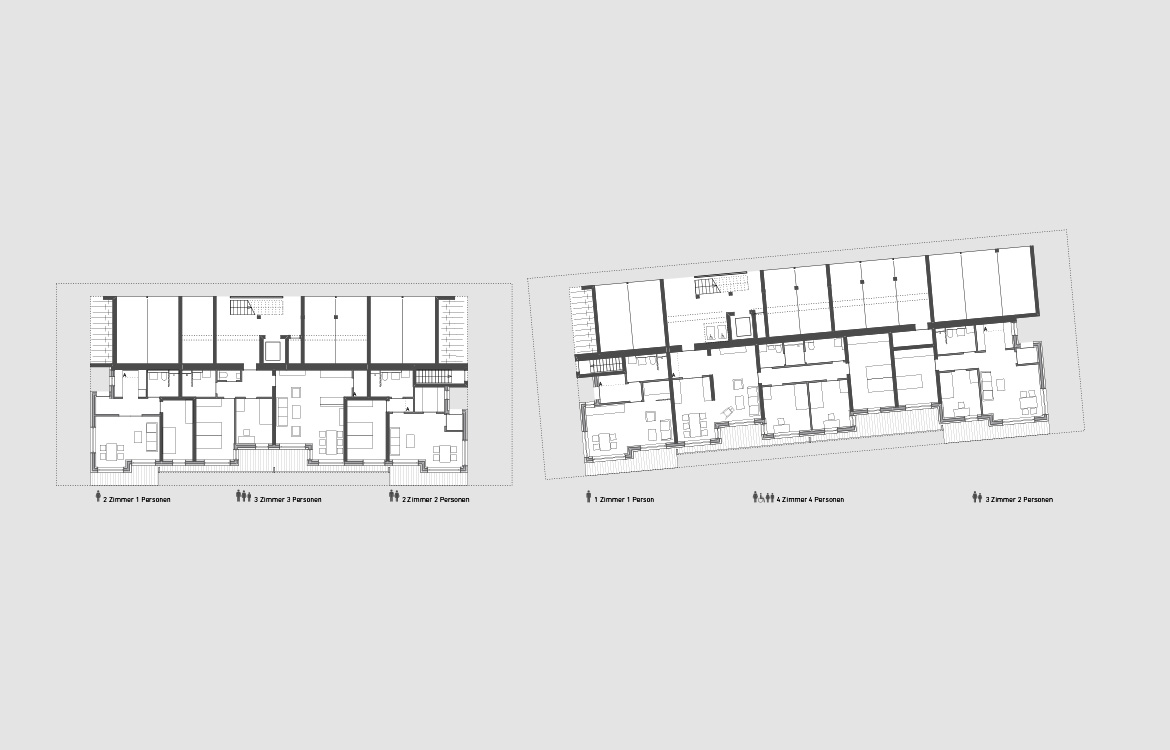
Die beiden Häuser nehmen die stadträumliche Linie des östlich angrenzenden Bauernhofes auf und schaffen eine klare Raumkante zur südlich angrenzenden Landschaft. Der „Wirtschaftshof“, der von den Wohnhäusern und den Carports bzw. Garagen entlang der Lärmschutzwand gefasst wird, dient als Erschliessungshof. Südlich der Häuser organisieren sich die Terrassen und Gärten der Wohnungen zur Landschaft hin. Die innere Organisation der Häuser richtet sich nach den schallschutztechnischen Anforderungen, die aus den Lärmemissionen der Beslerstrasse resultieren. Unser Konzept schlägt eine Laubengangtypologie vor, die das o.g. Problem geschickt umgeht. Die Aufenthaltsräume werden über die Giebelseiten und die Südseiten belichtet. Das nach Norden hin „unbewohnbare“ EG übernimmt die Funktion der PKW-Stellplätze. Die Organisation der Häuser als 4- bzw. 5-Spänner und die Ausbildung des 1. und 2.OG als Regelgeschoss gewährleistet eine wirtschaftliche Umsetzung des Projektes. Durch die oberirdische Anordnung der Stellplätze kann der Bau einer teuren Tiefgarage entfallen. Die Einsparungen, die über die strukturelle Konzeption der Häuser realisiert werden, können in die von uns vorgeschlagene und in den örtlichen Bauvorschriften geforderte Materialität und Gestaltung der Häuser investiert werden.
Konstruktion und Brandschutz
In ihrer Materialität, Konstruktion und Erscheinung orientieren sich die Häuser an der traditionellen Bauweise im Allgäu. Bei der Konstruktion wurde großen Wert auf Nachhaltigkeit, Langlebigkeit und geringen Ressourcenverbrauch gelegt. Die Außenwände bestehen aus einer gedämmten Holzständerkonstruktion mit hinterlüfteter Lärchenschalung. Somit kann ein hohes Maß an Vorfertigung realisiert werden. Sowohl die Trennwand zwischen den Stellplätzen und den Wohnungen im EG als auch die darüberliegende Decke wird in Stahlbeton ausgeführt, um die Wohnungen vor der Brandlast der Autos zu schützen. Die Laubengangdecken und die Treppen werden auch aus Gründen des Brandschutzes in Stahlbeton ausgeführt. Die restlichen Decken bestehen aus Brettsperrholzelementen. Die Wohnungstrennwände werden in Massivbauweise erstellt und steifen die Konstruktion aus. Das unausgebaute und ungedämmte Dach dient als Klimapuffer für die darunterliegenden Wohnungen. Das für den Laubengang und die Balkone vorgeschlagene Bundwerk ist ein architektonisches Element, das im bayerischen und österreichischen ländlichen Raum bei bäuerlichen Wirtschaftsgebäuden eingesetzt wird. Im Bereich der Laubengänge schafft es funktional einen optischen und schalltechnischen Filter zur Beslerstrasse. Gestalterisch vervollständigt es die klare Kubatur der Häuser und lässt die Fassaden nicht als banale Laubengangrückseiten erscheinen.
















