Alterswohnen am Ufertal

Realisierungswettbewerb
2019
Auslober: 9Bürger eG i.G., Neunburg vorm Wald
Arge mit R7-Architekten, Peter Thammer

 

Städtebauliches Konzept und innere Organisation des Hauses

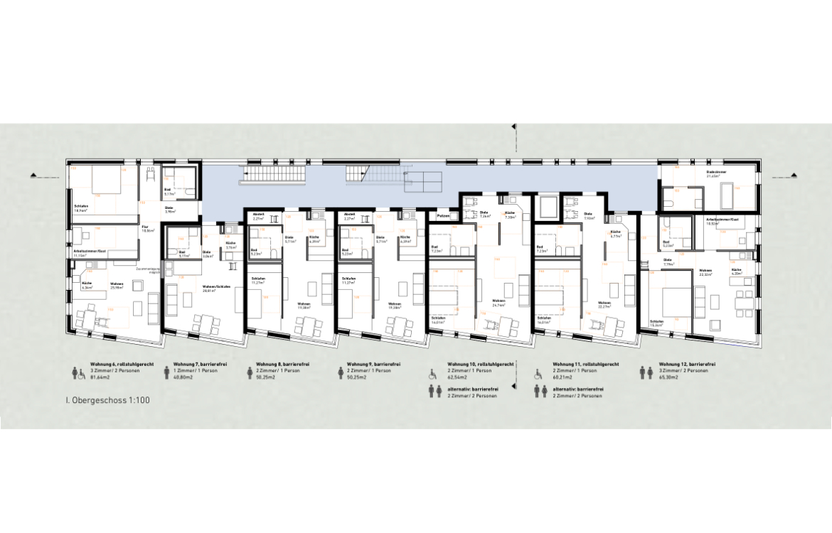
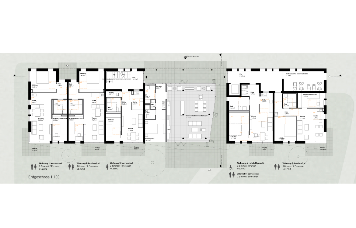
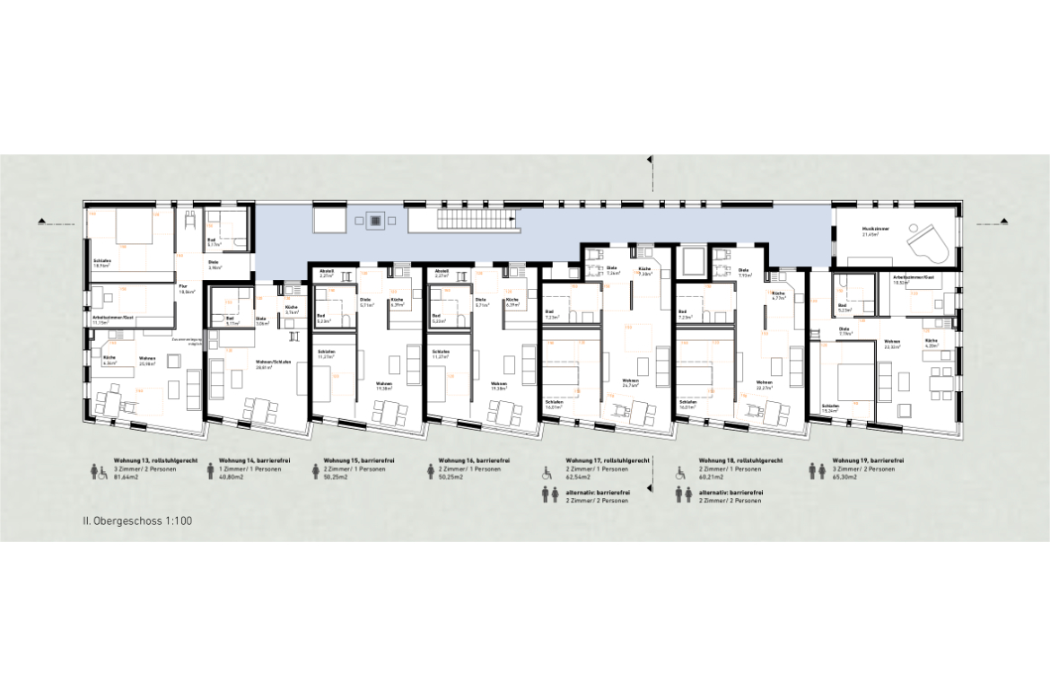
Das Grundstück liegt im Übergangsbereich zwischen der kleinteiligen Einfamilienhausbebauung östlich des Baugebiets und den maßstäblich grösseren Zeilenbauten des Pflegeheims und des Getränkemarktes. Unser Entwurf vermittelt baulich zwischen diesen Maßstäben: Der relativ große Baukörper wurd durch die sägezahnartige Ausbildung der Obergeschosse gegliedert und nimmt so den Maßstab der Einfamilienhäuser auf. Durch die Setzung des Gebäudes im nördlichen Drittel des Grundstücks ergeben sich unterschiedliche Aussenraumqualitäten. Nördlich des Gebäudes nimmt der „Wirtschaftshof“ mit direkten Zugeng zum Hauseingang alle Stellplätze auf. Südlich des Hauses organisieren sich die Terrassen der Wohnungen und die gemeinschaftlich genutzten Freianlagen zur Landschaft hin. Unser Konzept schlägt eine einhüftige Treppenwegtypologie vor, welche die Kommunikation und Interaktion der Bewohner stärkt. Aufweitungen des Treppenweges laden zum gewohnten „Zaunratsch“ oder zu einem spontanen Schachspiel ein. Der Treppenweg als halböffentlicher Gemeinschaftsraum übernimmt die Funktion der Dorfgasse. Zudem animiert die räumliche Qualität dieses Raumes die Bewohner zum Laufen und Treppensteigen und bietet somit beiläufig ein Angebot zur täglichen, körperlichen Ertüchtigung der Bewohner. Zum Treppenweg hin organisieren sich die Flure, Küchen und Bäder der Wohnungen. Die Wohn- und Schlafräume werden über die Giebelseiten und die Südseite belichtet. Die sägezahnartige Ausbildung bietet jeder Wohnung im Obergeschoss eine Eckbelichtung und einen räumlich hochwertigen „Balkonersatz“. Die Küchen werden über den Treppenweg belichtet. Jede Wohnung ist durchbelichtet und bietet Ausblicke in die drei Richtungen. Der Gemeinschaftsbereich befindet sich zentral an der Schnittstelle des Hauseingangs und des Durchgangs im Erdgeschoss und lädt somit zu zufälligen Begegnungen ein. Die Schiebe-Faltelemente ermöglichen ein komplettes Öffnen der Fassade und somit die Umwandlung des Gemeinschaftsraumes zu einer grossen, gemeinschaftlichen Loggia an warmen Tagen. Die Organisation des Hauses als 7-Spänner und die Ausbildung des 1. und 2.OG als Regelgeschoss gewährleistet eine wirtschaftliche Umsetzung des Projektes. Die Teilunterkellerung spart ebenfalls Bausumme. Erspartes fließt in Materialität und Gestaltung der Hauses. Somit kann auch im Rahmen des geförderten Wohnungsbaus mit sehr strengen Kostenobergrenzen ein hochwertiges und nachhaltiges Haust realisiert werden.

Konstruktion und Material

Bei der Konstruktion wurde grosser Wert auf Nachhaltigkeit, Langlebigkeit und geringen Ressourcenverbrauch gelegt. Die Außenwände in den Obergeschossen bestehen aus einer gedämmten Holzständerkonstruktion mit hinterlüfteter Lärchenschalung. Ein hohes Maß an Vorfertigung ist gut umsetzbar. Die Erdgeschossaussenwände werde in monolithischem Mauerwerk ausgeführt, der Keller wird betoniert. Die Decken (EG-2.OG) bestehen aus Holzbetonverbunddecken, die von Schotte zu Schotte spannen, aussteifend wirken und einen guten Schallschutz ermöglichen.

Ausblick

Der zweigeschossige Erweiterungsbau wird im südlichen Grundstücksteil vorgesehen. Dieser würde im Falle einer Realisierung gemeinsam mit der Wohnanlage ein städtebauliches Ensemble bilden und die gemeinschaftlich genutzten Aussenanlagen räumlich fassen. In Verlängerung des Durchgangs im EG ist eine fussläufige Verbindung zur Dorrer-Villa vorgesehen. Im Falle einer Kooperation könnte diese städtebaulich, freiräumlich und funktional in dieses Ensemble integriert werden.

Innenraum

Alle Wohnungen in den Obergeschossen können durch die „sägezahnartige“ Ausbildung des Baukörpers über Eck belichtet werden. Die nach aussen öffnenden Fensterelemente stehen nicht störend im Raum und der Platz vor dem Fenster kann optimal genutzt werden. Das vorgeschlagene Fenstersystem ermöglicht eine pfostenlose Ausbildung der Ecke. Feststellbeschläge halten die Flügel in einer 90°-Position, Rückholbügel ermöglichen auch älteren Menschen ein einfaches Schliessen der Fenster. Die kompakten Wohnungen erhalten trotz geringer, wirtschaftlicher Investitionen einen räumlich hochwertigen „Balkonersatz“. Die geringe Breiten der Flügel, ermöglichen Reinigungsarbeiten von innen.

X
1/7
Alterswohnen am Ufertal

Realisierungswettbewerb
2019
Auslober: 9Bürger eG i.G., Neunburg vorm Wald
Arge mit R7-Architekten, Peter Thammer

 

Städtebauliches Konzept und innere Organisation des Hauses

Das Grundstück liegt im Übergangsbereich zwischen der kleinteiligen Einfamilienhausbebauung östlich des Baugebiets und den maßstäblich grösseren Zeilenbauten des Pflegeheims und des Getränkemarktes. Unser Entwurf vermittelt baulich zwischen diesen Maßstäben: Der relativ große Baukörper wurd durch die sägezahnartige Ausbildung der Obergeschosse gegliedert und nimmt so den Maßstab der Einfamilienhäuser auf. Durch die Setzung des Gebäudes im nördlichen Drittel des Grundstücks ergeben sich unterschiedliche Aussenraumqualitäten. Nördlich des Gebäudes nimmt der „Wirtschaftshof“ mit direkten Zugeng zum Hauseingang alle Stellplätze auf. Südlich des Hauses organisieren sich die Terrassen der Wohnungen und die gemeinschaftlich genutzten Freianlagen zur Landschaft hin. Unser Konzept schlägt eine einhüftige Treppenwegtypologie vor, welche die Kommunikation und Interaktion der Bewohner stärkt. Aufweitungen des Treppenweges laden zum gewohnten „Zaunratsch“ oder zu einem spontanen Schachspiel ein. Der Treppenweg als halböffentlicher Gemeinschaftsraum übernimmt die Funktion der Dorfgasse. Zudem animiert die räumliche Qualität dieses Raumes die Bewohner zum Laufen und Treppensteigen und bietet somit beiläufig ein Angebot zur täglichen, körperlichen Ertüchtigung der Bewohner. Zum Treppenweg hin organisieren sich die Flure, Küchen und Bäder der Wohnungen. Die Wohn- und Schlafräume werden über die Giebelseiten und die Südseite belichtet. Die sägezahnartige Ausbildung bietet jeder Wohnung im Obergeschoss eine Eckbelichtung und einen räumlich hochwertigen „Balkonersatz“. Die Küchen werden über den Treppenweg belichtet. Jede Wohnung ist durchbelichtet und bietet Ausblicke in die drei Richtungen. Der Gemeinschaftsbereich befindet sich zentral an der Schnittstelle des Hauseingangs und des Durchgangs im Erdgeschoss und lädt somit zu zufälligen Begegnungen ein. Die Schiebe-Faltelemente ermöglichen ein komplettes Öffnen der Fassade und somit die Umwandlung des Gemeinschaftsraumes zu einer grossen, gemeinschaftlichen Loggia an warmen Tagen. Die Organisation des Hauses als 7-Spänner und die Ausbildung des 1. und 2.OG als Regelgeschoss gewährleistet eine wirtschaftliche Umsetzung des Projektes. Die Teilunterkellerung spart ebenfalls Bausumme. Erspartes fließt in Materialität und Gestaltung der Hauses. Somit kann auch im Rahmen des geförderten Wohnungsbaus mit sehr strengen Kostenobergrenzen ein hochwertiges und nachhaltiges Haust realisiert werden.

Konstruktion und Material

Bei der Konstruktion wurde grosser Wert auf Nachhaltigkeit, Langlebigkeit und geringen Ressourcenverbrauch gelegt. Die Außenwände in den Obergeschossen bestehen aus einer gedämmten Holzständerkonstruktion mit hinterlüfteter Lärchenschalung. Ein hohes Maß an Vorfertigung ist gut umsetzbar. Die Erdgeschossaussenwände werde in monolithischem Mauerwerk ausgeführt, der Keller wird betoniert. Die Decken (EG-2.OG) bestehen aus Holzbetonverbunddecken, die von Schotte zu Schotte spannen, aussteifend wirken und einen guten Schallschutz ermöglichen.

Ausblick

Der zweigeschossige Erweiterungsbau wird im südlichen Grundstücksteil vorgesehen. Dieser würde im Falle einer Realisierung gemeinsam mit der Wohnanlage ein städtebauliches Ensemble bilden und die gemeinschaftlich genutzten Aussenanlagen räumlich fassen. In Verlängerung des Durchgangs im EG ist eine fussläufige Verbindung zur Dorrer-Villa vorgesehen. Im Falle einer Kooperation könnte diese städtebaulich, freiräumlich und funktional in dieses Ensemble integriert werden.

Innenraum

Alle Wohnungen in den Obergeschossen können durch die „sägezahnartige“ Ausbildung des Baukörpers über Eck belichtet werden. Die nach aussen öffnenden Fensterelemente stehen nicht störend im Raum und der Platz vor dem Fenster kann optimal genutzt werden. Das vorgeschlagene Fenstersystem ermöglicht eine pfostenlose Ausbildung der Ecke. Feststellbeschläge halten die Flügel in einer 90°-Position, Rückholbügel ermöglichen auch älteren Menschen ein einfaches Schliessen der Fenster. Die kompakten Wohnungen erhalten trotz geringer, wirtschaftlicher Investitionen einen räumlich hochwertigen „Balkonersatz“. Die geringe Breiten der Flügel, ermöglichen Reinigungsarbeiten von innen.

Lageplan
Grundriss Erdgeschoss
Grundriss Obergeschoss I
Grundriss Obergeschoss II
Ansicht Süd West
Ansicht Nord Ost
Ansicht Nord West
Ansicht Süd Ost
Längsschnitt
Querschnitt
Fassadendetail
Perspektive
Modellfoto