Erweiterungsneubau Alfons-Brandl-Schule

Realisierungswettbewerb
2019
Auslober: Herzogsägmühle / Innere Mission München – Diakonie in München und Oberbayern e.V.

Städtebauliches Konzept und innere Organisation

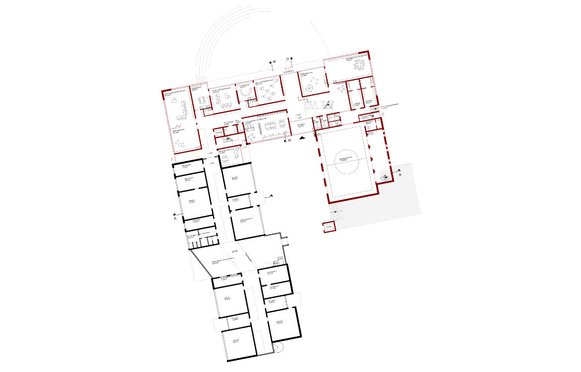
Unser Entwurf zur Erweiterung der Alfons-Brandl-Schule orientiert sich städtebaulich an der Körnigkeit und Raumbildung der benachbarten Albrecht-Schnitter-Schule. Der Neubau bildet mit dem Bestandsbau einen klar definierten Schulhof. Die architektonischen Elemente des Bestandsgebäudes, wie z. B. die versetzten Pultdächer, werden aufgegriffen, fortgeführt und neu kombiniert. Dadurch entsteht ein Ensemble aus artverwandten Bauteilen, jedes für sich behält jedoch seine eigene Identität und seinen eigenen Charakter. Der innere Rhytmus der Klassenzimmer und Gruppenräume wird, wie im Bestand, weitergeführt und um funktionale Räume ergänzt. Durch diese Anordnung entstehen attraktive Fluraufweitungen mit Garderoben. Die neuen Klassenzimmer orientieren sich nach Norden und erhalten dadurch eine optimale Belichtung und einen schönen Ausblick auf die angrenzenden Bäume. Die zusätzlichen Oberlichter ermöglichen eine zweiseitige Belichtung und Belüftung aller Klassenzimmer.Die Erschließungsflure sind kurz und übersichtlich und weiten sich zum zweigeschossigen Foyer und Pausenbereich auf, welcher Raum für weitere Nutzungen bietet. Die Oberlichter in den Wänden sorgen für eine sehr gute Tageslichtbelichtung der Flure.
Der Bewegungsraum fasst auf der östlichen Seite den Schulhof und bietet bei größeren Veranstaltungen wie Schulfesten ein attraktives räumliches Angebot. Ein direkter Zugang zum Schulhof ist bei solchen Anlässen über großzügige Türen möglich.Der „Campanile“ mit integriertem Aufzug übernimmt die Funktion der barrierefreien Erschließung des Hofes und kann auch zu Zwecken der Belieferung durch den Hausmeister genutzt werden. Nördlich des Schulgebäudes wird die leicht abfallende Wiese zu einem Rondell geformt. Das Rondell schafft einen fließenden Übergang zur angrenzenden Landschaft und bietet den Kindern in den Pausen und bei schulischen Veranstaltungen einen Spiel-, Aufenthalts- und Kommunikationsraum.

Konstruktion und Material

Bei der Konstruktion wurde großer Wert auf Nachhaltigkeit, Langlebigkeit und geringen Ressourcenverbrauch gelegt. Die Außenwände in monolithischem Mauerwerk werden verputzt. Die im Innenraum sichtbare Dachkonstruktion aus Holz und die Holzbetonverbunddecken stellen langlebige, wirtschaftliche Konstruktionen dar, die darüber hinaus den Anforderungen an einen Schulbau bzgl. Gestalt, Materialität und Haptik mehr als nur gerecht werden.Alle Räume lassen sich natürlich belichten und belüften, Querlüftungen sind möglich. Durch die Nord- ausrichtung der meisten Klassenzimmer kann auf außenliegenden Sonnenschutz verzichtet werden. Blendschutz bzw. Verdunkelung kann über Vorhänge erfolgen. Dieser „Low-Tech-Ansatz“ ermöglicht sowohl in der Erstellung als auch im Unterhalt eine wirtschaftliche Lösung zur Erweiterung der Alfons-Brandl-Schule.
X
1/7
Erweiterungsneubau Alfons-Brandl-Schule

Realisierungswettbewerb
2019
Auslober: Herzogsägmühle / Innere Mission München – Diakonie in München und Oberbayern e.V.

Städtebauliches Konzept und innere Organisation

Unser Entwurf zur Erweiterung der Alfons-Brandl-Schule orientiert sich städtebaulich an der Körnigkeit und Raumbildung der benachbarten Albrecht-Schnitter-Schule. Der Neubau bildet mit dem Bestandsbau einen klar definierten Schulhof. Die architektonischen Elemente des Bestandsgebäudes, wie z. B. die versetzten Pultdächer, werden aufgegriffen, fortgeführt und neu kombiniert. Dadurch entsteht ein Ensemble aus artverwandten Bauteilen, jedes für sich behält jedoch seine eigene Identität und seinen eigenen Charakter. Der innere Rhytmus der Klassenzimmer und Gruppenräume wird, wie im Bestand, weitergeführt und um funktionale Räume ergänzt. Durch diese Anordnung entstehen attraktive Fluraufweitungen mit Garderoben. Die neuen Klassenzimmer orientieren sich nach Norden und erhalten dadurch eine optimale Belichtung und einen schönen Ausblick auf die angrenzenden Bäume. Die zusätzlichen Oberlichter ermöglichen eine zweiseitige Belichtung und Belüftung aller Klassenzimmer.Die Erschließungsflure sind kurz und übersichtlich und weiten sich zum zweigeschossigen Foyer und Pausenbereich auf, welcher Raum für weitere Nutzungen bietet. Die Oberlichter in den Wänden sorgen für eine sehr gute Tageslichtbelichtung der Flure.
Der Bewegungsraum fasst auf der östlichen Seite den Schulhof und bietet bei größeren Veranstaltungen wie Schulfesten ein attraktives räumliches Angebot. Ein direkter Zugang zum Schulhof ist bei solchen Anlässen über großzügige Türen möglich.Der „Campanile“ mit integriertem Aufzug übernimmt die Funktion der barrierefreien Erschließung des Hofes und kann auch zu Zwecken der Belieferung durch den Hausmeister genutzt werden. Nördlich des Schulgebäudes wird die leicht abfallende Wiese zu einem Rondell geformt. Das Rondell schafft einen fließenden Übergang zur angrenzenden Landschaft und bietet den Kindern in den Pausen und bei schulischen Veranstaltungen einen Spiel-, Aufenthalts- und Kommunikationsraum.

Konstruktion und Material

Bei der Konstruktion wurde großer Wert auf Nachhaltigkeit, Langlebigkeit und geringen Ressourcenverbrauch gelegt. Die Außenwände in monolithischem Mauerwerk werden verputzt. Die im Innenraum sichtbare Dachkonstruktion aus Holz und die Holzbetonverbunddecken stellen langlebige, wirtschaftliche Konstruktionen dar, die darüber hinaus den Anforderungen an einen Schulbau bzgl. Gestalt, Materialität und Haptik mehr als nur gerecht werden.Alle Räume lassen sich natürlich belichten und belüften, Querlüftungen sind möglich. Durch die Nord- ausrichtung der meisten Klassenzimmer kann auf außenliegenden Sonnenschutz verzichtet werden. Blendschutz bzw. Verdunkelung kann über Vorhänge erfolgen. Dieser „Low-Tech-Ansatz“ ermöglicht sowohl in der Erstellung als auch im Unterhalt eine wirtschaftliche Lösung zur Erweiterung der Alfons-Brandl-Schule.
Schwarzplan
Lageplan
Grundriss Erdgeschoss
Grundriss Obergeschoss
Schnitte
Piktogramme
Materialität
Ansicht Süd
Ansicht Ost
Ansicht Nord
Ansicht West